Via dei Canzi 1 - Piano Attuativo
Il Piano Attuativo riguarda il complesso immobiliare industriale dismesso ex De Nora situato nella zona nord est del territorio di Milano, in prossimità dello scalo ferroviario di Lambrate e del sistema metropolitano urbano.
Precedente all’approvazione del Piano il comparto risultava essere un’area industriale dismessa. Con il Piano si è proceduto alla demolizione degli immobili, spesso oggetto di occupazioni abusive, e si sono avviate le bonifiche di quella parte delle aree non già bonificate.
La proposta di P.A. contempla un intervento di riqualificazione urbana da attuarsi prevalentemente mediante nuova edificazione, sostituzione edilizia e in parte recupero degli edifici esistenti. La destinazione funzionale prevalente è residenziale (con obbligo di destinare l’indice di 0,35 mq/mq a Edilizia Residenziale Sociale) articolata in residenza libera, convenzionata in vendita di tipo ordinaria, convenzionata in vendita di tipo agevolato e in locazione con patto di futura vendita; sarà possibile insediare altre funzioni urbane con esclusione di quella produttiva, fino ad un massimo di 335 mq circa.
in attuazione
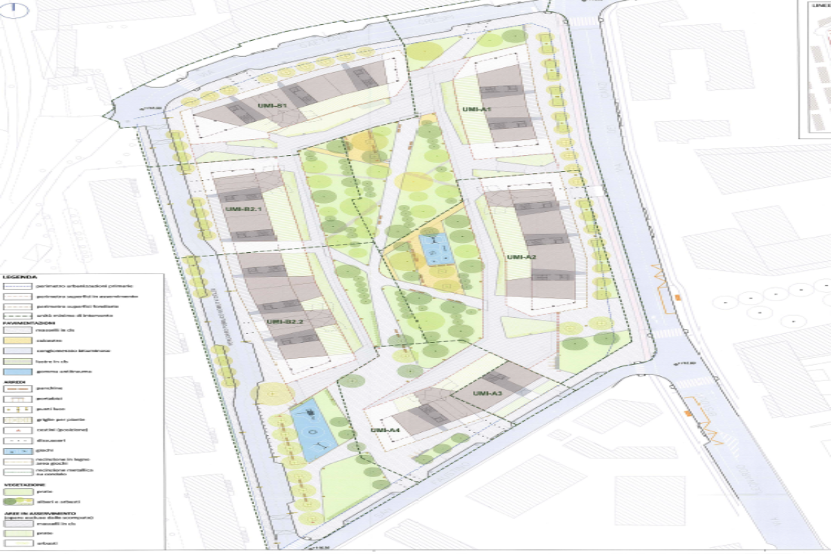
Il nuovo isolato si connota per un impianto morfologico-insediativo a corte aperta con altezza degli edifici variabile.
E’ previsto in particolare un parco pubblico centrale destinato a verde con un sistema di percorsi, attraversamenti e aree giochi per bambini, che garantiscono permeabilità fisica e visiva rispetto agli spazi pubblici esistenti. Il nuovo giardino attrezzato costituirà infatti uno dei poli di un sistema di spazi aperti pedonali con un’importante dotazione di verde.
Inoltre saranno realizzate opere di sistemazione di tutto il marciapiede di via dei Canzi, una pista ciclabile monodirezionale, la riqualificazione di via Crespi e la sistemazione del marciapiede di via San Faustino lato sud.
Il complesso presenta altezze e corpi di fabbrica variabili come richiesto dalla Commissione per il Paesaggio.
L’intervento prevede un ampio ricorso a fonti di energia rinnovabili allo scopo di realizzare edifici performanti con bassi costi di gestione (“classe A”). Il sistema sarà in grado di garantire la copertura del riscaldamento dell’acqua sanitaria per minimo il 60% del fabbisogno, nonché la copertura della richiesta termica per il riscaldamento e ACS tra il 55 e l’80%. Inoltre è prevista l’installazione di pannelli fotovoltaici.
Argomenti:
Aggiornato il: 30/07/2021